賃貸物件の紹介
/
産業道路沿いの好立地!駐車場5~6台付きの貸店舗
情報更新日:2026.03.13
| 物件名 | 入江貸店舗 |
|---|---|
| 賃料 | 132,000円/月 |
| 駐車場 | 5台可 |
| 敷金 | 2ヶ月 |
| 礼金 | 1ヶ月 |
| 所在地 | 岡山市中区江崎 |
産業道路沿いに位置する、視認性の高い店舗・事務所用物件です。
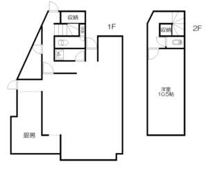
1階は店舗スペース、2階は事務所として利用できる実用的なレイアウトで、
店舗利用はもちろん、営業所や事務所としてもご利用いただけます。
駐車場は5~6台分確保されており、来客やスタッフの車利用にも便利です。
バス停徒歩1分&大通り沿いでアクセス良好♪
物件概要
●物件名:入江貸店舗
●所在地:岡山市中区江崎710-2
●交通:岡電バス「新道浜中」徒歩1分
●物件種目:貸店舗
●賃料:132,000円/月
●駐車場:5台込(現地確認要)
●敷金:2ヵ月
●礼金:1ヵ月
●面積:100.23㎡
●階数:2階建
●築年数:昭和56年3月
●構造:木造
●接面道路:東側 約38m(公道)
●幅員:東側 約25m
●入居:相談
●取引態様:専任媒介
●ガス:プロパンガス
●排水:浄化槽
●備考:浄化槽管理費用・浄化槽清掃費用別途要。
店舗の改装費用は借主負担。
現入居者が改装しているため、間取りが図面と相違あり。
重飲食不可、市街化調整区域。
初回家賃保証料 家賃総額100%
月額家賃保証料 1,056円
口座振替手数料 440円
●所在地:岡山市中区江崎710-2
●交通:岡電バス「新道浜中」徒歩1分
●物件種目:貸店舗
●賃料:132,000円/月
●駐車場:5台込(現地確認要)
●敷金:2ヵ月
●礼金:1ヵ月
●面積:100.23㎡
●階数:2階建
●築年数:昭和56年3月
●構造:木造
●接面道路:東側 約38m(公道)
●幅員:東側 約25m
●入居:相談
●取引態様:専任媒介
●ガス:プロパンガス
●排水:浄化槽
●備考:浄化槽管理費用・浄化槽清掃費用別途要。
店舗の改装費用は借主負担。
現入居者が改装しているため、間取りが図面と相違あり。
重飲食不可、市街化調整区域。
初回家賃保証料 家賃総額100%
月額家賃保証料 1,056円
口座振替手数料 440円
お問い合わせ
お急ぎの場合は、
お手数ですがお電話にてご連絡を頂きますようお願い致します。
- 営業時間
- 平日 9:00~18:00土日 10:00〜17:00
- 定休日
- 水曜・祝日・第2第3日曜日
プライバシーポリシー
みつまた不動産(以下当社)では、個人情報に関する法令およびその他の規範を遵守し、お客様の大切な個人情報の保護に万全を尽くします。
個人情報の収集について
当社では、次のような場合に必要な範囲で個人情報を収集することがあります。
- 当社へのお問い合わせ時
- 当社へのサービスお申し込み時
個人情報の利用目的について
当社は、お客様から収集した個人情報を次の目的で利用いたします。
- お客様への連絡のため
- お客様からのお問い合せに対する回答のため
- お客様へのサービス提供のため
個人情報の第三者への提供について
当社では、お客様より取得した個人情報を第三者に開示または提供することはありません。
ただし、次の場合は除きます。
- ご本人の同意がある場合
- 警察からの要請など、官公署からの要請の場合
- 法律の適用を受ける場合
個人情報の開示、訂正等について
当社は、お客様ご本人からの自己情報の開示、訂正、削除等のお求めがあった場合は、確実に応じます。
個人情報保護に関するお問い合わせ先
〒702-8006 岡山市中区藤崎559-1
TEL 086-277-8426
みつまた不動産 光亦 香織