読み込み中

賃貸物件の紹介

営業所にも最適!駐車3台以上可能な事務所

情報更新日:2026.03.13
物件名 三宅テナント
賃料 121,000円/月
駐車場 4台込み
敷金 なし
礼金 1ヶ月
所在地 岡山市中区藤崎

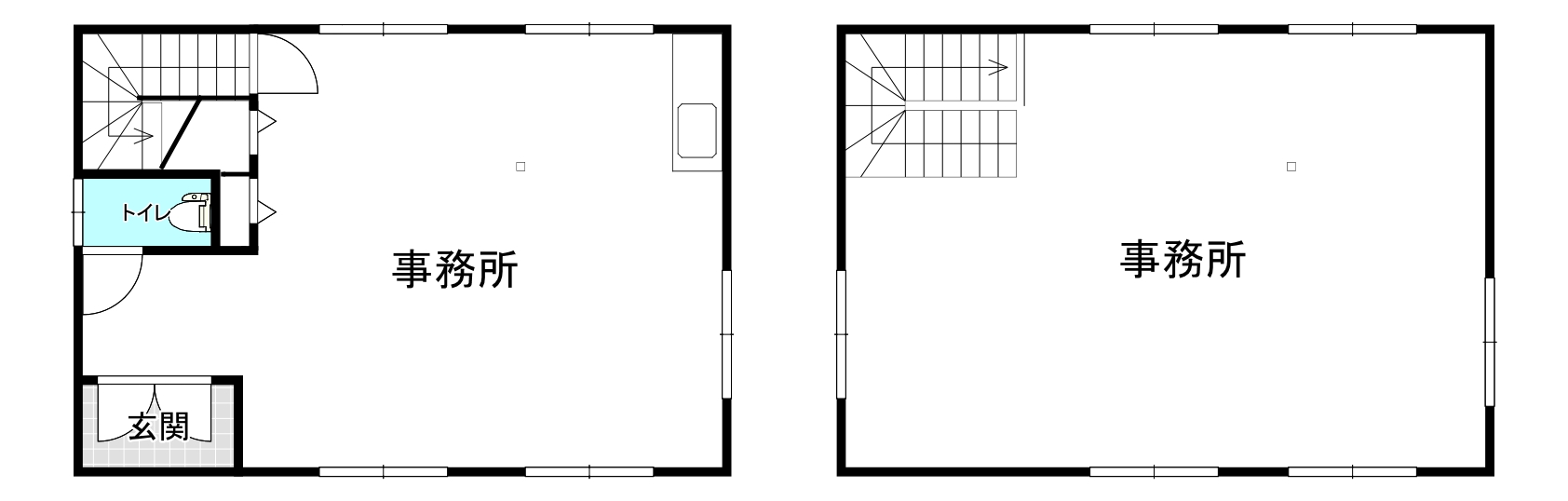
約94㎡(約28坪)の広さがあり、事務所や営業所として

ゆとりをもってご利用いただけます。

駐車スペースを3台以上無料で利用できるため、

営業車や来客用駐車場を確保したい企業様にもおすすめです。

岡電バス「三蟠郵便局前」バス停から徒歩2分とアクセスも良好です。

みつまた不動産のおすすめ

複数台駐車可能×バス停近くでアクセス良好♪

物件概要

●物件名:三宅テナント
●所在地:岡山市中区藤崎557-3
●交通:岡電バス「三蟠郵便局前」徒歩2分
●物件種目:貸事務所
●賃料:121,000円/月
●駐車場:4台込
●敷金:なし
●礼金:1ヵ月
●階数:2階建
●築年数:平成13年9月
●構造:木造
●面積:94.88㎡
●入居:相談
●取引態様:一般媒介
●排水:下水
●備考:水道代別途要

初回家賃保証料 家賃総額100%
月額家賃保証料 968円
口座振替手数料 440円

物件マップ

お問い合わせ

    以下の内容で送信いたします。間違いがないかご確認ください。
    物件名
    お名前
    E-mail
    電話番号
    ご住所
    ご連絡方法
    ご希望時間帯
    お問合わせ内容
    不正送信防止の確認
    自動送信防止のための確認です。操作は不要です。

    お急ぎの場合は、
    お手数ですがお電話にてご連絡を頂きますようお願い致します。

    営業時間
    平日 9:00~18:00土日 10:00〜17:00
    定休日
    水曜・祝日・第2第3日曜日

    プライバシーポリシー

    みつまた不動産(以下当社)では、個人情報に関する法令およびその他の規範を遵守し、お客様の大切な個人情報の保護に万全を尽くします。

    個人情報の収集について

    当社では、次のような場合に必要な範囲で個人情報を収集することがあります。

    • 当社へのお問い合わせ時
    • 当社へのサービスお申し込み時

    個人情報の利用目的について

    当社は、お客様から収集した個人情報を次の目的で利用いたします。

    • お客様への連絡のため
    • お客様からのお問い合せに対する回答のため
    • お客様へのサービス提供のため

    個人情報の第三者への提供について

    当社では、お客様より取得した個人情報を第三者に開示または提供することはありません。
    ただし、次の場合は除きます。

    • ご本人の同意がある場合
    • 警察からの要請など、官公署からの要請の場合
    • 法律の適用を受ける場合

    個人情報の開示、訂正等について

    当社は、お客様ご本人からの自己情報の開示、訂正、削除等のお求めがあった場合は、確実に応じます。

    個人情報保護に関するお問い合わせ先

    〒702-8006 岡山市中区藤崎559-1
    TEL 086-277-8426
    みつまた不動産 光亦 香織